Garage

人生を遊ぶ、
“大人の秘密基地”を。

ガレージは、車やバイクを置くだけの場所ではなく、
人生を楽しむための“もうひとつのリビング”です。

MAGLOのオーダーガレージは、
収納や作業スペースを超えた「自分だけの居場所」としてデザイン。
鉄骨の重厚感と木の温もりを融合させ、
機能と美を両立した空間をつくり上げます。

趣味を語る時間。仲間と過ごす時間。
そこに流れるのは“あなたの人生のリズム”。

—— それは、日常を解放する場所であり、
心が帰る“ガレージという名のステージ”です。

Price

参考価格

図面

参考価格

¥4,800,000

詳細

・高さ5m ×横7m×高さ5m
・シャッター高さ3m×長さ5m

補足

※表示価格はガレージ本体価格となります。
基礎工事・施工費・運搬費・電気設備・外構工事などは含まれておりません。
現場状況やご希望内容により、別途お見積りとなります。

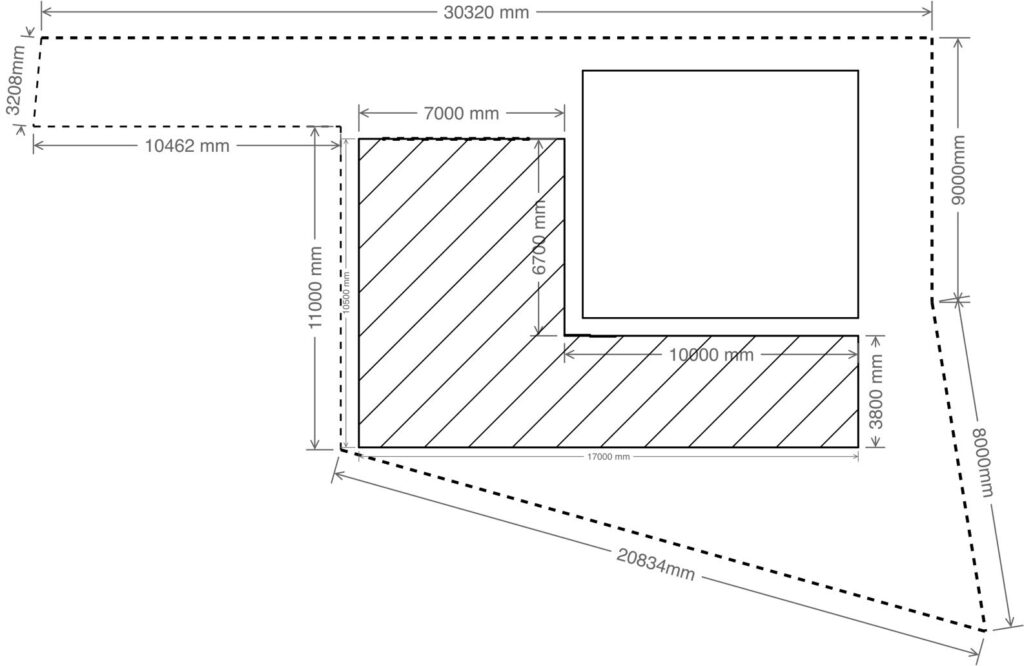
図面

参考価格

¥3,000,000

詳細

・高さ4.5m×横8m×奥行き8m

補足

※表示価格はガレージ本体価格となります。
基礎工事・施工費・運搬費・電気設備・外構工事などは含まれておりません。
現場状況やご希望内容により、別途お見積りとなります。

図面

参考価格

¥2,760,000

詳細

・幅7m×奥行き7m×高さ4m
・シャッター高さ2.5m横2.5m

補足

※表示価格はガレージ本体価格となります。
基礎工事・施工費・運搬費・電気設備・外構工事などは含まれておりません。
現場状況やご希望内容により、別途お見積りとなります。